En las operaciones de carga de camiones cisterna, el acceso a la parte superior del vehículo representa uno de los principales riesgos de seguridad. Las caídas en altura siguen siendo una de las causas más frecuentes de accidentes en terminales industriales. En este contexto, las safety cages o cestas de seguridad se han convertido en una solución clave para proteger a los operarios y mejorar las condiciones de trabajo.
Durante las operaciones de carga superior, los operarios deben trabajar a varios metros de altura, muchas veces en condiciones exigentes: superficies resbaladizas, presencia de producto, condiciones meteorológicas adversas o movimientos del vehículo. Sin sistemas de protección adecuados, el riesgo de caída es elevado.
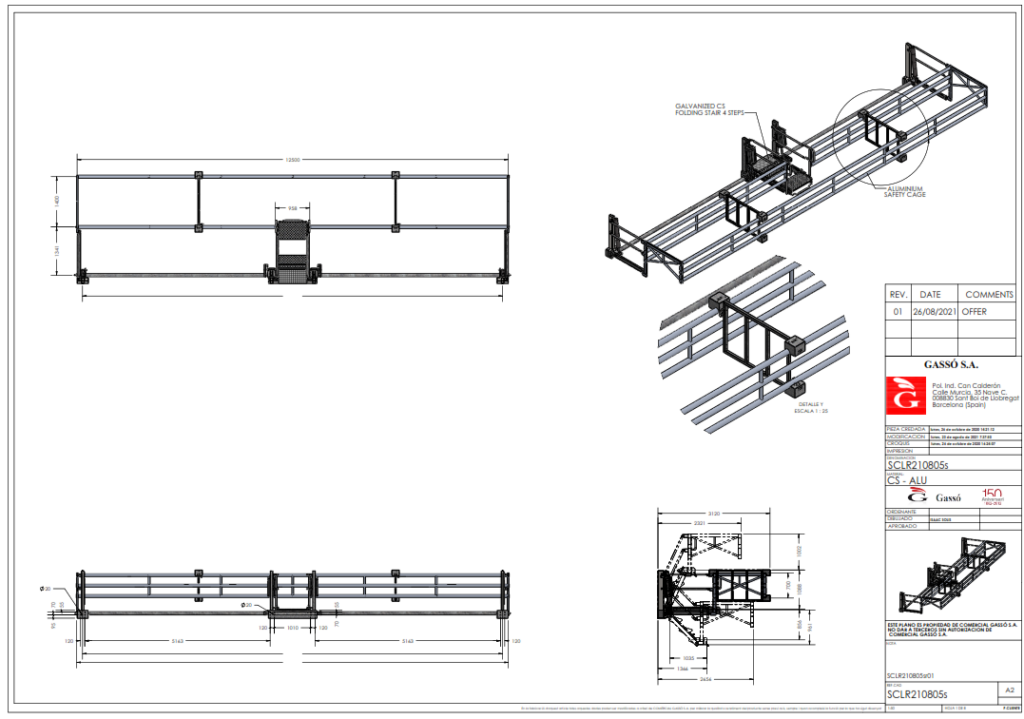
¿Qué es una safety cage (cesta de seguridad)?
Una safety cage es una estructura de protección diseñada para rodear al operario durante las عملیات de carga, creando una barrera física que reduce significativamente el riesgo de caída. Estas soluciones suelen integrarse con sistemas de acceso como escaleras o plataformas, formando un conjunto completo de seguridad.
Ventajas de las safety cage en terminales de carga:
- Protección contra caídas: Crean un entorno seguro alrededor del operario durante la operación.
- Mayor estabilidad: Permiten trabajar con mayor seguridad y control en altura.
- Reducción de accidentes laborales: Minimización del riesgo en uno de los puntos más críticos del proceso.
- Cumplimiento normativo: Facilitan la adaptación a normativas de seguridad industrial.
- Integración en sistemas existentes: Se pueden adaptar a diferentes configuraciones de carga.
La seguridad en terminales no debe depender únicamente del operario, sino del diseño del sistema.
En Gassó, desarrollamos soluciones de safety cages diseñadas para integrarse en entornos industriales exigentes, combinando robustez estructural, facilidad de uso y máxima protección.

Diseñar la seguridad desde el origen
La implementación de safety cages no solo mejora la seguridad, sino que también aporta beneficios operativos: mayor confianza del operario, reducción de incidencias y mejora de la eficiencia en las operaciones de carga.
En sectores como el químico, oil&gas o transporte de productos peligrosos, este tipo de soluciones se está convirtiendo en un estándar cada vez más extendido.
Más de 150 años en el campo de la conducción de fluidos avalan nuestra experiencia y know-how. En Gassó, trabajamos para desarrollar soluciones que mejoran tanto la seguridad como la eficiencia en entornos industriales.
Si estás revisando la seguridad en tu terminal de carga, podemos ayudarte a analizar tu instalación y proponer mejoras adaptadas a tus necesidades.
Analizamos tu aplicación y te damos una recomendación clara en menos de 48h.
Test de nuestras safety cages en fábrica:


